Foxhills Farm Residences
Foxhills Farm Residences
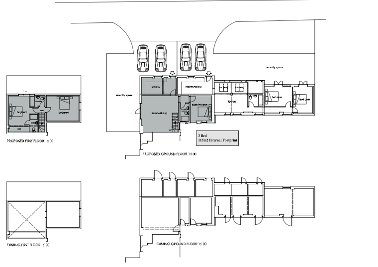
Foxhills Barn
The Foxhills Barn has been designed with the family in mind. Each room has been carefully proportioned to ensure you can enjoy the lovely countryside views from every angle. The bedrooms are well appointed and living areas generously sized to ensure a needs of a growing family are satisfied. The kitchen and bathrooms are contemporary and elegantly finished, we are sure they will meet with your approval.
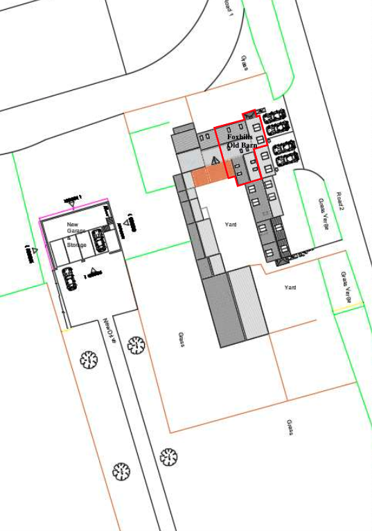
Development Address Foxhills Farm, Barrow upon Soar, LE12 8JX
Regional Office - East Midlands Adam Court, Northgate, New Basford, Nottingham, NG7 7GR
Head Office - London 116 Pall Mall, London, SW1Y 5ED
T: 020 7965 7227 (London) 0115 784 0319 (Nottingham) E: enquiries@adamhomes.co.uk
Foxhills Farm Residences
is a development by Adam Homes.
Adam Homes is a trading name of Foxhill (Estates) Limited. All rights reserved.